Limido Comasco

STUDIOS CO

14/04/2026

LO STUDIO DEI RIVESTIMENTI e LA SCELTA DEI SANITARI/RUBINETTERIE

Nei bagni, il rivestimento in gres, i sanitari e la rubinetteria sono elementi che costruiscono lo spazio prima ancora di arredarlo.

Il gres è da considerare come materia che dialoga con la luce, assorbe o riflette, definisce profondità e ritmo: la sua posa diventa progetto.
La distribuzione del rivestimento non è casuale: concentrare l’altezza nelle zone funzionali — doccia e sanitari — significa dare forza ai punti d’uso, creare quinte nette e proteggere le superfici dove serve davvero. Altrove, invece, lasciare “respirare” la muratura, lavorando con uno zoccolino basso, cambia completamente la percezione dello spazio.

Il bianco della parete libera diventa una superficie attiva: riflette la luce, amplifica i volumi, restituisce aria. Un bagno completamente rivestito tende a chiudersi su sé stesso; un bagno che alterna materia e intonaco si espande, anche quando i metri quadrati sono contenuti.

La luce fa il resto: un rivestimento scuro o materico acquista profondità se colpito in modo radente; una superficie chiara si dilata e diventa quasi immateriale. È qui che il progetto trova equilibrio nel modo in cui ogni superficie reagisce alla luce naturale e artificiale.


L’allineamento delle fughe, la continuità tra pavimento e parete, la corrispondenza con gli assi di lavabo, wc e bidet: nulla è lasciato al caso. Quando le fughe sono studiate, lo spazio appare ordinato anche senza arredi. Quando non lo sono, il disordine emerge anche nei progetti più costosi.

Infine lo specchio: grande, proporzionato, mai residuale. È uno strumento progettuale, non un accessorio. Amplifica la luce, raddoppia le prospettive, corregge la percezione delle dimensioni. In molti casi è l’elemento che trasforma definitivamente il bagno, portandolo da spazio tecnico a ambiente architettonico.

Un bagno ben progettato si riconosce subito.

Non per quanto è rivestito, ma per quanto è pensato.

Limido Comasco

STUDIOS CO

07/04/2026

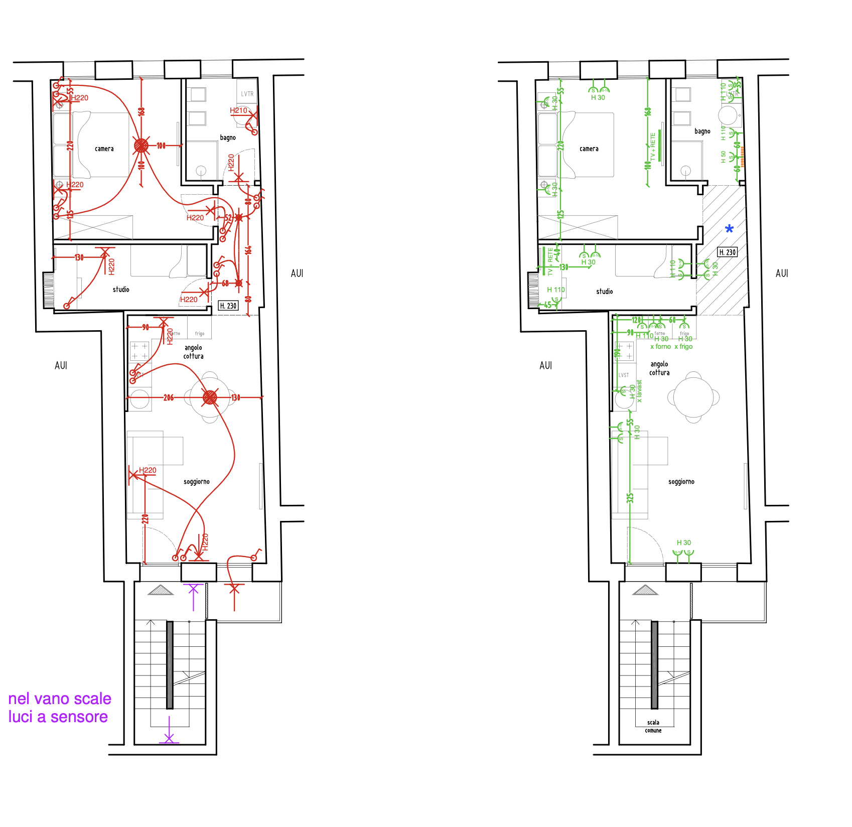
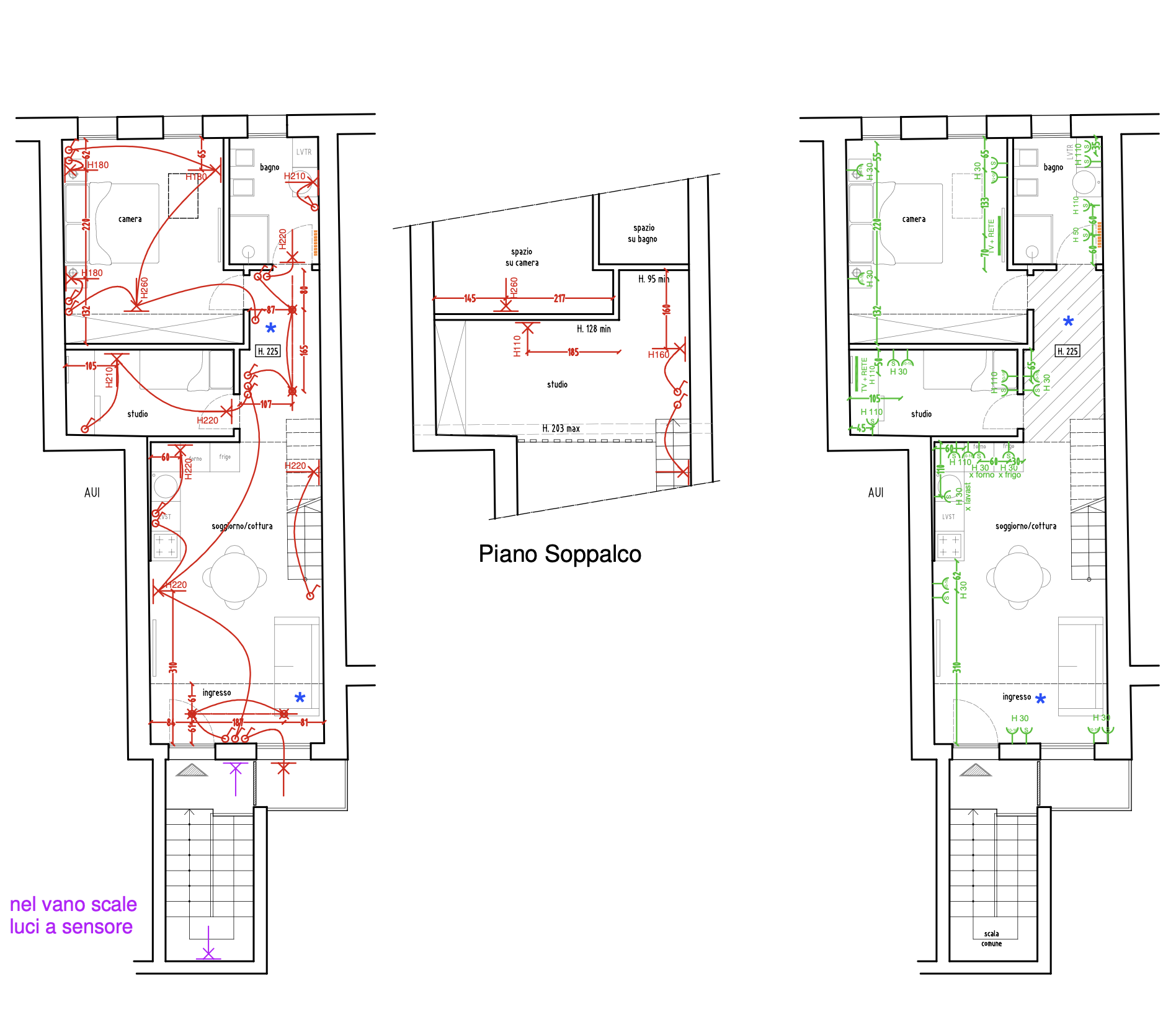
GLI ESECUTIVI

Ci sono momenti in cui un intervento smette di essere un’idea e diventa una responsabilità: è esattamente lì che entrano in gioco gli elaborati esecutivi. Sono lo strumento che trasforma una visione in dati concreti, misurabili, verificabili.

Perché finché si resta nel preliminare, si parla di ipotesi, quando si entra nell’esecutivo, si iniziano a fare i conti veri.

Nel caso di Studios Co, abbiamo scelto una strada chiara: definire tutto prima di partire.

Abbiamo sviluppato nel dettaglio gli schemi dell’impianto elettrico e dell’impianto idraulico.

Ogni punto luce, ogni presa, ogni linea, ogni scarico… non è più una scelta da fare in cantiere.
È una decisione già presa, disegnata, quantificata.

Senza un progetto esecutivo, il preventivo è sempre una stima larga e quando è larga, succede sempre la stessa cosa:

  • o è troppo basso → e poi esplode in corso d’opera

  • o è troppo alto → e blocca decisioni e investimenti

Ora possiamo dire quanto costa davvero costruire!

In un’operazione come questa, gli investitori non stanno comprando solo un immobile, stanno entrando in un processo e quel processo deve essere leggibile.

Gli elaborati esecutivi diventano quindi uno strumento di trasparenza totale:

  • nessun costo nascosto

  • nessuna decisione lasciata al caso

  • nessuna variabile non controllata

Chi investe sa esattamente dove vanno le risorse e soprattutto: perché.

La scelta di eliminare il gas, inoltre, non è solo una presa di posizione, è una semplificazione progettuale ed economica.

Tutto viene concentrato su sistemi elettrici efficienti, coerenti con un obiettivo chiaro: raggiungere classi energetiche alte (A o B) e mantenerle nel tempo.

Alla fine, il tema non è il costo, ma il controllo del costo.

Evitiamo la cosa più pericolosa in un’operazione immobiliare: l’incertezza.

Limido Comasco

STUDIOS CO

02/04/2026

IL PROGETTO

clicca sulle immagini per i dettagli degli APT…

Limido Comasco

STUDIOS CO

Ci sono edifici che aspettano… e chiedono di essere capiti.

Uno spazio frammentato, ambienti senza gerarchia, luce poco valorizzata, energia dispersa.
Abbiamo impostato una strategia architettonica ed economica!

Il progetto prende forma con un’idea chiara: trasformare un unico volume in tre appartamenti autonomi, ciascuno con una propria identità.

Le distribuzioni sono state calibrate per intercettare una domanda reale: abitazioni compatte, efficienti, immediatamente utilizzabili.

Questa operazione funziona perché è semplice: gli investitori entrano all’inizio del processo, acquistando direttamente uno degli appartamenti.
Questo capitale iniziale ci permette di muoverci con velocità, controllo e qualità.

Il risultato è doppio:

  • per noi, libertà operativa e tempi certi

  • per loro, accesso a un immobile a un prezzo competitivo rispetto al mercato

Una volta completato l’intervento, ogni proprietà diventa una leva: può essere abitata, può essere affittata o può essere rivenduta con un margine interessante.
È un’operazione concreta, leggibile, costruita su un bene reale, ma soprattutto sulla fiducia reciproca.

L’edificio passa da una condizione energivora a una prestazione in classe A o B, grazie a un lavoro preciso su involucro, serramenti, impianti e gestione dei consumi, perchè oggi una casa si compra anche per come consuma.

23/03/2026

PRESENTAZIONE